Описание:
Встраиваемый анодированный профиль из алюминия с фланцем предназначен для размещения светодиодной ленты или LED-линейки в перилах лестницы.
Фигурный профиль для светодиодной ленты, встраиваемый в перила используется для подсветки круглых поручней и перилл лестницы.
Рассеиватель (экран) для профиля выполнен из стойкого к УФ-излучению поликарбоната и защищает LED ленту от загрязнений. Можно использовать матовый или прозрачный экран, в зависимости от интенсивности освещения (яркий или мягкий свет).
Использование светодиодной ленты во встраиваемом в перила профиле с фланцем - функциональное и оригинальное дизайнерским решением. При помощи данного профиля можно организовать подсветку перилл любой лестницы.
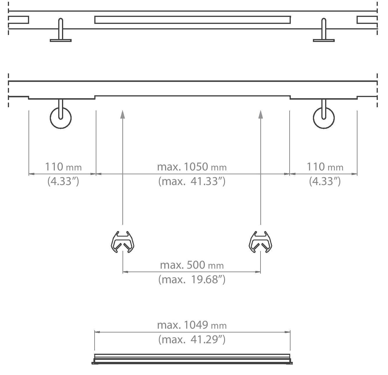
Установка светодиодной LED ленты в профиль осуществляется с помощью специальных держателей, что обеспечивает легкость и безопасность монтажа.
Стандартная длина профиля – 2 м. По заказу – 1 м.


